¥
货币
$ US Dollar
¥ 人民币
语言
French
简体中文
400-900-5258
商户中心
商户注册
商户登录
会员中心
会员注册
会员登录
收藏(0)
对比
购物车
结账
小院生活+管理系统
搜索
商品分类
首页
全部分类
最新商品
特价商品
品牌专区
博客
新闻动态
版本历史
购买专业版
0
您的购物车内没有商品!
空中花园
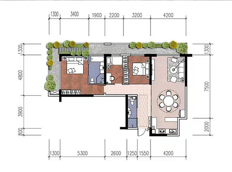
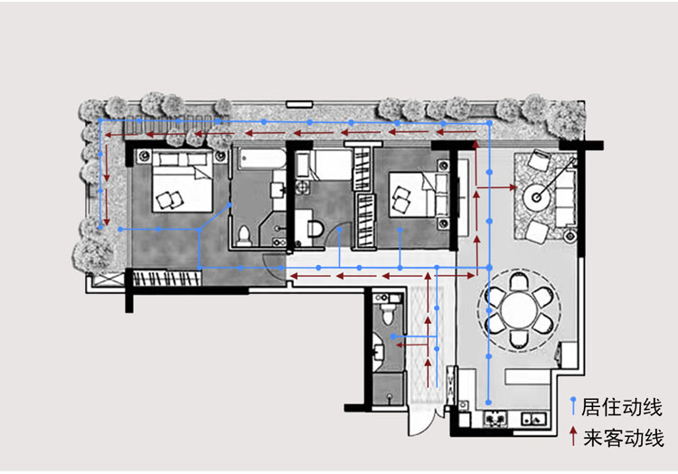
【水半湾】奢享G户型 124.98㎡
【水半湾】奢享G户型 124.98㎡
0 评论
¥1,148,567.00
型号:
香山未来城·空中花园
商品库存:
2-3 天后到货
销量:
164
空调
已售罄
分享到
QQ空间
新浪微博
人人网
腾讯微博
网易微博
商品详情
商品评价
商品咨询
询问关于该商品的问题
您的姓名
您的问题
注意
评论内容不支持HTML代码!
提交